Luxury real estate agency
Presnenskaya Embankment, 6c2,
Empire Tower,
3rd entrance, office 4315
Moscow region,
Rublyovo-Uspenskoe highway, Usovo, 100, RC "Residence on Rublyovka", Block G

Office, 838 m², Leningradskaya, 39c5, Lot №28352

У лота нет комплекса
Office in Khimki Business Park business center, 838 m²
RUB 698,000 per month $9,122 per month €7,699 per month
RUB 833 / m² $11 / m² €9 / m²
with finishing
new building
838 m²
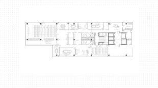
Office of 838 sq.m. in Khimki. The open-plan office is located on the 14th floor in building No.2 of the business center "Khimki Business Park". It is finished, ceiling height is 2.8 meters. There is a reception area, meeting rooms, a rest area, a server room, a kitchen and a separate bathroom. Individual microclimate adjustment by zones is possible. Security is ensured by round-the-clock security with video surveillance and access control.
Read Full