Luxury real estate agency
Presnenskaya Embankment, 6c2,
Empire Tower,
3rd entrance, office 4315
Moscow region,
Rublyovo-Uspenskoe highway, Usovo, 100, RC "Residence on Rublyovka", Block G

Office, 8300 m², Elektrozavodskaya, 27c8, Lot №18476

У лота нет комплекса
Office in "LeFORT" business center, 8,300 m²
Preobrazhenskoye district
RUB 11,760,000 per month $153,000 per month €130,000 per month
RUB 1,416 / m² $18 / m² €15 / m²
with finishing
new building
8,300 m²
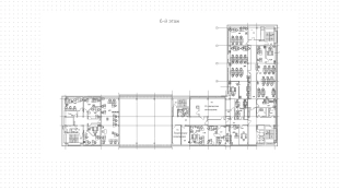
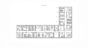
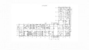
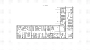
Building No.9 in business center "LeFORT" in Preobrazhenskoe district. Class B+ building with the area of 8 300 m². Inside the premises with a combined layout, elevators are provided for ease of movement. Ceiling height is 3-5 meters. Supply and exhaust ventilation and central air conditioning systems are installed. The facade of the 6-storey building with a basement is made in a modern style with the predominance of glass panels and metal elements, which in combination with dark purple cladding create a stylish and technological look. A cafe is planned on the 1st floor, a ground parking lot for 746 cars is organized for visitors and tenants.
Read Full