Luxury real estate agency
Presnenskaya Embankment, 6c2,
Empire Tower,
3rd entrance, office 4315
Moscow region,
Rublyovo-Uspenskoe highway, Usovo, 100, RC "Residence on Rublyovka", Block G

Apartment c 2 спальнями, 150 м² в ЖК Krivoarbatsky, 16, 8 этаж

Krivoarbatsky, 16
Apartment with modern repair on Old Arbat, 150 m²
Smolenskaya, 5 minutes
RUB 380,000 per month $4,677 per month €4,074 per month
Price on request Price on request Price on request
2 bedrooms
8 floor of 8
with finishing
new building
150 m²
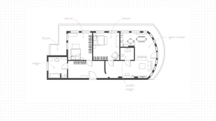
A 2-bedroom apartment with a total area of 150 m² in a house on the Old Arbat on the last 8th floor. Designer renovation with the use of natural wood. The interior is decorated in light colors, the floors are laid with wooden board. The apartment is fully equipped with upholstered furniture and household appliances. Ceiling height is 3.2 meters. The windows overlook Novy Arbat, the Foreign Ministry building and a quiet courtyard. Layout: spacious kitchen-living room with 10 windows, 2 bedrooms, bathroom with a window, laundry room, dressing room, hall. There is an exit to the balcony. There is an air conditioning system, heated floors. A parking place in the underground parking is not included in the price.
Read Full