Luxury real estate agency
Presnenskaya Embankment, 6c2,
Empire Tower,
3rd entrance, office 4315
Moscow region,
Rublyovo-Uspenskoe highway, Usovo, 100, RC "Residence on Rublyovka", Block G

cottage, 1730 м² в КП Barvikha 21, лот №14189

Barvikha 21
Cottage, 1,730 m²
RUB 2,400,000,000 $31,460,000 €26,530,000
RUB 1,390,000 / m² $18,000 / m² €15,000 / m²
6 bedrooms
3 floors
proprietor
1,730 m²
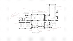
The country mansion with an area of 1730 m² is located on a 38 hectare plot of land. The modern facade harmoniously combines the textures of stone and wood, and stylish lighting effectively emphasizes the laconic architecture of the building. Panoramic windows fill the house with sunlight, while second light and ceilings up to 3.9 meters high create a feeling of spaciousness. The stylish interiors are designed in calm colors and are fully equipped with comfortable furniture, built-in appliances and elegant decorative items. The layout includes a spacious living room-kitchen-dining room with a fireplace, six cozy bedrooms, a study, spacious dressing rooms, a private gym and a wine cellar. The heart of the house is a luxurious spa area with swimming pool, sauna, hammam and massage room. Additional benefits include a staff apartment, an equipped working kitchen and a built-in garage for six cars. On the plot, breathe in the smell of freshly cut grass as you stroll in the shade of tall trees and admire the ornamental shrubs. Nighttime gatherings on the terrace with barbecue area will be even more romantic thanks to the soft street lighting.
Read Full